Our Beach | Our Ocean Views | Our Construction | Aerial Tour | Photo Gallery | Contact Us

One of a Kind Approved Beach Project in Costa Rica.

Prime Location 20 minutes South of Jaco Beach and 40 Minutes N. of Manuel Antonio National Park, the No 1 Tourist Attraction.

In Prime Growth Corridor on Central Pacific 1½ hours from San Jose.

Residential Oceanview Beach Homes Project

Prime Location on Costa Rica Central Pacific Coast

  • 247 individually titled, residential home building lots on 42 acres
  • Shovel Ready For Infrastructure Build Out - Includes all Engineering
  • Secure Gated Community Home Owner Association Structure
  • High Growth Area-Central Pacific Coast
  • 20 mIns SE of Jaco
  • 40 mins NW of Manuel Antonio
  • Close to San Jose airport
  • Gently Rolling Ocean View Hillside Lots
  • Located in the most popular tourist corridor in Costa Rica.
  • Property Surrounded by New Roadways

For pricing and further details
Contact: Jovan Damjanac

US Calls: +1-856-318-6027  | Whatsapp

Click to enlarge view

Esterillos Oeste Beach

Highslide JS

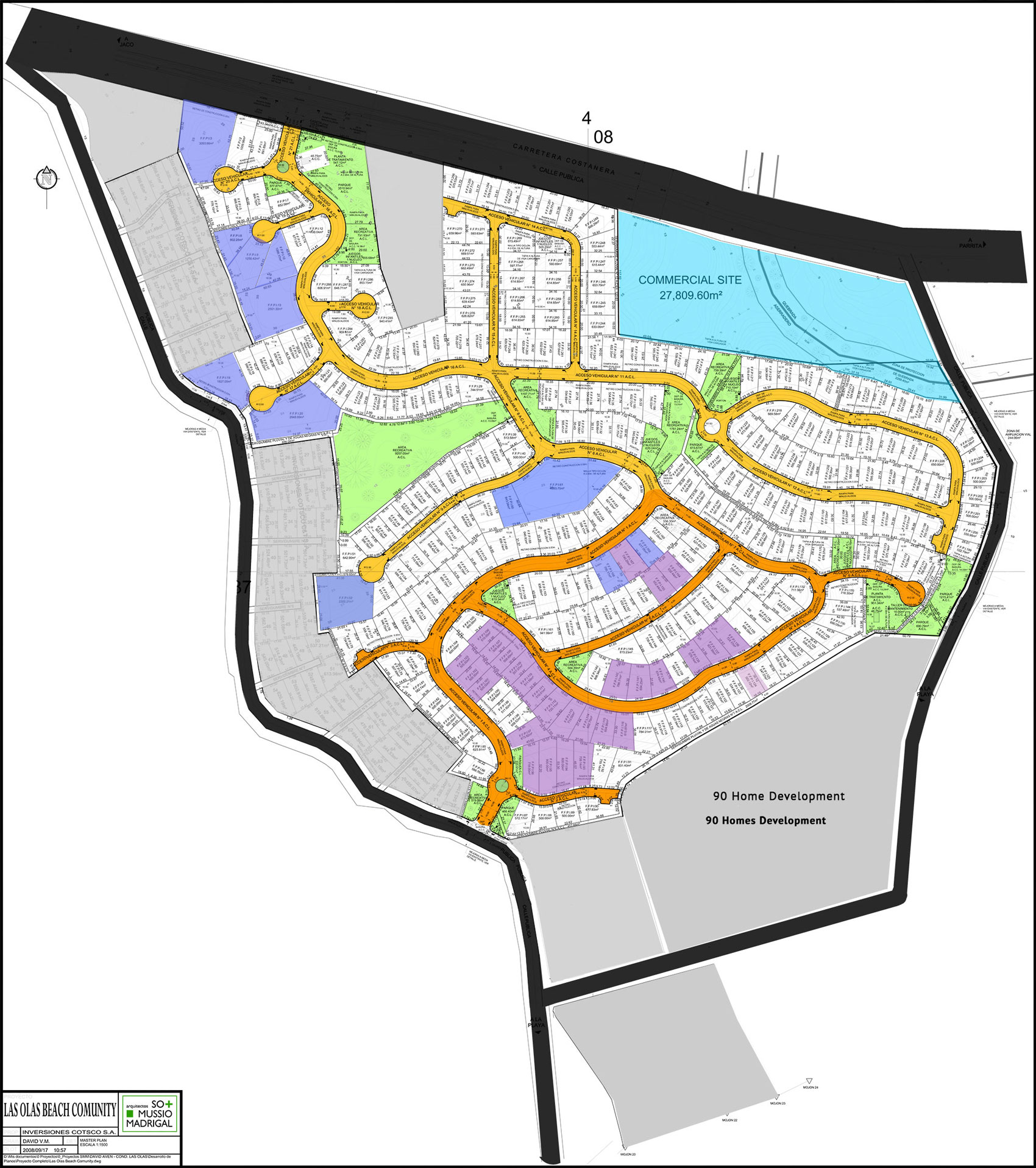
The Approved Master Site Plan

  • 247 Lots marked in white on the master site are available.
  • The master site plan has been approved for buildout by the country's top Environmental Regulatory Authority, (SETENA).
  • Builder will just need to register with local municipality and apply for building permits.
  • Original Architect and Engineering Firm That Obtained Approvals Are Available for Assistance
Click to enlarge view

Google Earth Map Imagery



Above videos show the Property from its highway corner and Pan American Highway frontage, then the bulk of the oceanview land (247 lots), some adjoining homes projects, and the Pacific Ocean Views.
More videos on our Photo Gallery Page .



Drone Videos of Rock Construction Malaga Project. 6 Kilometers South West from Las Olas 400 Homes on 250 to 300 Sq Meter Lots Project started in 2011 and was built and completely sold out by the summer of 2016.



Mistico Project Just 7 Kilometers North West of Las Olas. Same size lots here are selling for $120,000 to $400,000.



Drive through of Las Olas Project May 2011.

Las Olas Buyer Testimonial


Contact Jovan Damjanac

US Calls: +1-856-318-6027  | Whatsapp

Email: jovancr@gmail.com

COPY RIGHT 2021 | ALL RIGHTS RESERVED |